當初我們購買的是預售屋,
買的時候尚未完工,建商也允許我們變動家裡的內部環境(通稱為「客變」)。
很幸運的是,廚房的廠商也願意配合我們變動廚房結構,
讓我們得以擁有更為順手的廚房。
(P.S.有些建案不允許客變廚房,若想要變動就要直接退掉整個廚房,自己之後再找廠商做)

對我們而言廚房是家裡使用率非常高的區塊,
客變後對我們而言更加合適,也是比起直接退掉整套廚房更經濟實惠的選擇。
(客變若退建商預設的東西,退的錢都不多,但自己再從0打造廚房又很貴,
所以客變可能是相對適合小資族的選項~)
這篇就想來紀錄一下我家一字型廚房的客變細節。
(電器櫃和中島是設計師做的而非建商,所以不列入這篇文章範圍喔~)
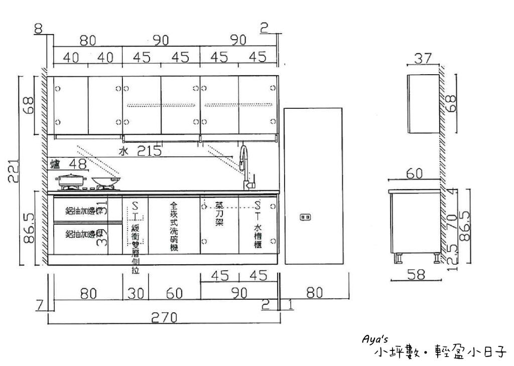
1.檯面拉長
也許因為我們看的房子坪數都不大,
建商配置的廚房,常常小到令人懷疑設計者根本直接預設屋主不做飯,
尤其是廚房的洗手台到瓦斯爐中間的平台,有時小到放一個沾板就滿了。
基本上大多自煮的我們,很重視廚房的空間,
加上打掉次臥的牆做成開放式的廚房,所以廚房的整體長度拉長一點也沒問題,
我們就選擇拉長了廚房的檯面長度,
從原本總長230公分,共多拉長了40公分。

本來我們將拉長的範圍集中在瓦斯爐~水槽之間,
但參考當時其他鄰居的提議,
最後是在洗手檯右邊空出一個小空間(約20CM),
本來預設著可以放一些清潔劑之類的物品,
結果想不到放yamazaki的窄版瀝水架超級剛好!目前就固定放瀝水架。


寬度16公分,剛好放的下,開箱文點此
2.檯面換韓國品牌人造石
建商配置的廚房,檯面原本就是人造石,
但廚房廠商有給我們看他放了兩年的樣品,
比較之下發現原本配置的人造石容易隨著時間泛黃,時間一久看起來會較為陳舊。
所以後來我們是加價換了韓國樂天的人造石檯面,
這個檯面目前是沒特別有泛黃感,但還是挺容易有刮痕,
也許一開始我們當時是用不鏽鋼沾板的關係,有些地方很明顯有刮傷,
換了木頭沾板後有比較改善一點。
3.加裝吊桿
廚房檯面面積寸土寸金,所以我們原則上盡量減少直接放在檯面上的常駐物品,
靠著吊桿來解決其他收納!

所以一開始我們就決定一定要加裝吊桿,
雖然把東西都收進櫥櫃會視覺上更整齊,但有些東西是會碰水的,
洗完不可能馬上放進櫃子裡,所以考量到方便性,還是有個吊桿更方便一點。
目前我們很依賴這支吊桿,
清潔劑、杯刷、杯子、濾網、湯勺、鍋鏟、沾板和菜刀、擦手巾都收納在這上面。
除了自己配置S型掛勾可以掛東西外,
許多品牌有出可以掛在桿子上的商品,
我們是買Day&Day這個不鏽鋼品牌的 掛式刀柄砧板架 和 掛式海綿置物架(放杯子),
品質很好也很穩,所以挺喜歡的。
4.抽油煙機馬力加大
我必須說,除非建案真的比較走高端路線,不然通常配的抽油煙機都有點雞肋…
我們是開放式空間,所以當初考量油煙問題,
有加價升級了抽油煙機,
建商本來配置的品牌就是櫻花,只是我們升級到更強力的版本(型號:DR3590AL)。

但即使有升級了抽油煙機,
開放式的空間若要熱炒,其實還是有油煙問題,
通常吃完飯還是全室都有味道,
目前就是靠著煮飯時盡量開強力抽風,加上飯後將空氣清淨機開強一點來應對,
大約通常要2-3個小時才能恢復。
5.加裝洗碗機

洗碗機也是我們裝潢時的共識,雖然有人說兩人家庭不需要洗碗機,
但我們實際上是每晚煮飯一定會用到,
因為我們大多煮4道菜,料理期間用的鍋具和碗,還有吃飯時的盤子和碗筷,
其實堆一堆也是不少,所以很感恩洗碗機幫我們分攤了家務。
洗碗機是廚具廠商推薦的AMICA的全崁式洗碗機(型號ZIV-629 ET),
它有個限制是要220v的電,還在客變階段的我們還來的及預留這個電源,
就直接跟建商的廚具商購入了這台洗碗機。
這台AMICA的洗碗機,跟大品牌比起來,價格應該算是挺實惠的,
目前使用到現在1年半,我們家的洗碗機並沒有發生什麼問題,
朋友家跟我們是同個型號,但她說偶爾會發生無法啟動的狀況,就給大家參考了~
洗碗機開箱文:Amica洗碗機-2年使用心得分享。
6.取消烘碗機

建商當時的配置,在水槽上方有烘碗機,
但我們因為已經有了洗碗機,基本上大多的物件洗完會幾乎全乾,
(少數會因為擺放或材質,容易沒有完全乾燥)
所以我們退掉了洗碗機,做成櫥櫃增加收納空間。
但聽說也有鄰居是保留烘碗機卻也有洗碗機的,
他的論點是有時手洗的碗可以烘,並且直接將烘碗機當成收納杯盤的空間,
所以也不覺得有浪費掉收納空間。
我自己是並沒有後悔,目前若手洗的杯盤,就會暫時放在瀝水架裡,
放不下的話就鋪一張餐墊,然後放餐墊上晾乾,
廚房也有準備碗盤專用的抹布,可以在洗完時稍微擦乾,減少乾燥所需的時間。

7.門櫃改抽屜櫃、醬料抽

建商配置的廚房下方本來都只有門櫃,沒有抽屜櫃,(抽屜要五金,比較貴)
但其實這樣的深度,抽屜是會更好收納和拿取的,
所以除了水槽櫃之外,
其他下櫃的櫃體,不是變成洗碗機的家,就是變成抽屜。
下抽屜櫃絕對比下門櫃實用許多,
抽屜比較可以淋漓盡致使用整體深度空間,
門櫃比較不容易拿取(拿東西幾乎一定要蹲下來)和配置,
所以若廚房底下的櫃體是門櫃,不妨考慮換成抽屜。

醬料抽也是我個人挺喜歡的配置,在瓦斯爐旁也很順手,
醬料擺到檯面上很容易被油煙弄得整罐黏黏的,擺在吊櫃內也比較不好拿取,
所以很推薦做一個醬料抽。
8.水槽櫃改不鏽鋼內桶

以前租屋時水槽下櫃是和其他廚房櫃體一樣的材質,
但不知道是不是因為水管通過比較潮濕,有時會有一種悶悶的味道。
目前家裡的下櫃內除了水管通過,還放了濾水器的濾心等等有水的物品,
但並未感覺特別潮濕,但畢竟入住到現在是1年半,之後還待考驗。
之前有找到網路上有人討論不鏽鋼內桶的部分,
PO文的人是強烈建議更換成不鏽鋼材質,當然也有一些反面意見,可參考這個討論串。
9.建議可以做:吊櫃底部的燈源
這一項是我們當時沒做,但後來自行解決的項目。
原本認為廚房上方2顆燈,加上整個開放空間的燈源,應該很足夠,
但還是會發生例如洗黑黑的鐵鍋時,因為不夠亮結果有些地方沒注意到,
拿回爐台用抽油煙機的燈一照,才發現沒洗乾淨的狀況。
所以我很推薦可以在廚房洗手檯上方的吊櫃底部裝個燈源,
有各種長度,通常薄薄一片燈板也不會太顯眼,卻可以幫助在需要時更順手。

我們後來是自行購買了蝦皮上的感應燈來裝,
它是充電款所以不用插著電線來用,可以磁吸貼在吊櫃底部,
且可以用在開關處揮手的方式來控制,不觸碰到開關也可以開燈,
對於手上油膩或有水,不方便直接接觸開關時非常實用。

若要充電時可拿下來去別處充電
結語
以上就是我家廚房當時客變的細項。
目前基本上我並沒有特別覺得後悔的事項,
可能頂多抽油煙機以後若要換的話,也許想換更高規的,
看看能否改善更多油煙味的問題吧!
以上給大家參考~~
若對廚房收納有興趣的人,也歡迎閱覽以下文章喔!






6 留言
在台灣要是我也會直接預設屋主不做飯 XDD
話說日本的預設裝潢基本上都考慮的蠻貼心,很多地方都跟你提到的改裝後的內容基本一致。
大致上只有時代進步所帶來的洗碗機之類的沒有預裝。
阿哈哈我們當時看房看到廚房時都有點無奈啊~
(幾乎都是一字型廚房,而且真的很小!
也幾乎沒預留電器櫃的空間,甚至有連冰箱空間都沒預留的= = )
.
看到你說就想到,我之前看過YouTube上的日系廚具開箱,
根本整個超級貼心又富有巧思的!
很會善用空間,又相對好清理,
要是以後家裡廚房要大翻新,我覺得我要存錢購買日系廚房XD
連冰箱空間都不預留,那也太誇張!
台灣炎熱天氣那麼長,不說食物容易腐敗、連冷飲都沒地方放……
依照你的保養習慣,廚房要達到大翻新的程度,差不多可以直接搬到更大的房子。
建商接待的人會說,「冰箱可以放在客廳,這樣拿零食很方便喔」XD
但實際上就是廚房已經沒這空間,而且樣品屋展示時通常也都不會放冰箱。
.
哈哈~我也不知道會住多久,也許真的可以住到超久呢~
就看看未來的想法了!
美眉您好
很喜歡您的分享
最近我也要找廚具廠商談客變的事項
您的分享對我幫助很大
想請問一下 像您這樣的廚具客變
應該抓多少預算呢?謝謝您撥空回答
讓我心裡有個底 畢竟小資能省一點就可以好確幸的
您好 當初這些廚具的變更,最後的費用是62000左右(含洗碗機 32300元)
但因為近期材料等的價格上漲,波動很大,所以建議是直接詢問廚具商會比較準確,
也可列出希望做的項目,請廚具商報價,若真的花費太高的再刪除,可能也是一種方式。